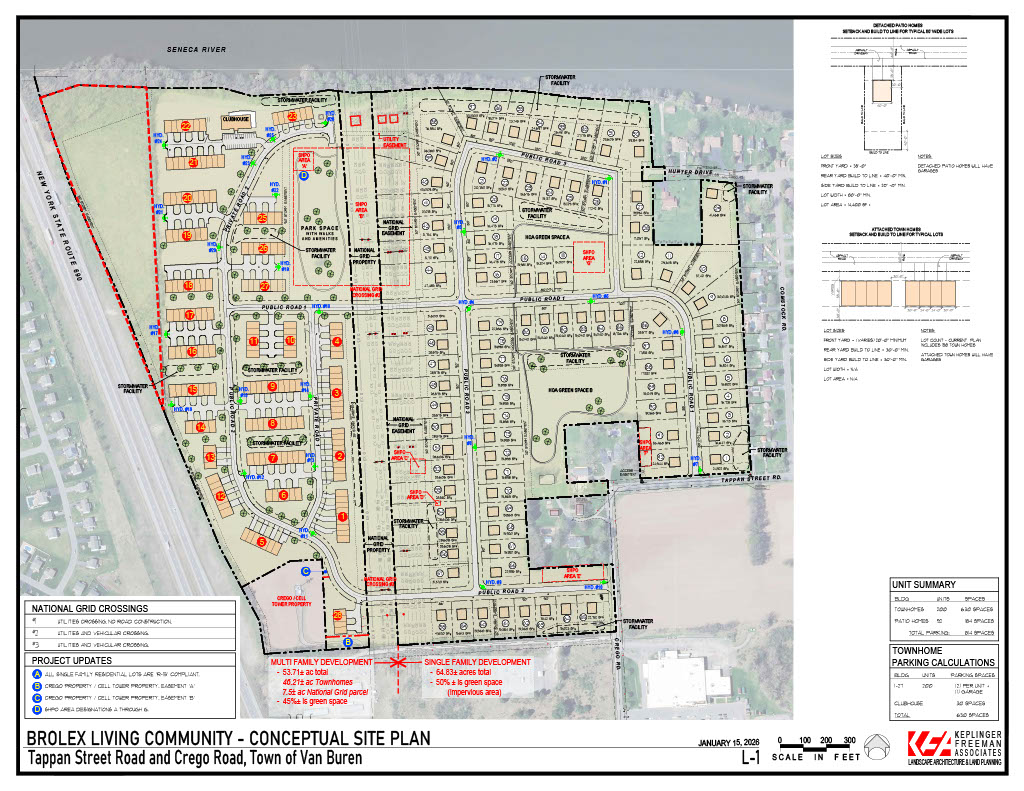
Crego Farms, Baldwinsville, NY (105acres/292 units)

Featured

Property Details

Address Baldwinsville, NY
Units 292

Description

Crego Farms is awaiting final PUD approval for the proposed 292 units, including 200 townhomes, and 92 single-family homes spanning over 105 acres. Although site work has not yet begun, the plan has been approved by New York State’s Historic Preservation Office due to the site’s historical significance. This reconfigured plan with more townhomes and single-family units is anticipated to experience a more expedited approval process, aligning with evolving development priorities.